361207
产品概述
品牌:国磁通GCT
品名:铁氧体磁环
产品适用线径:7.0mm
参考单重:6.0g
每箱包装数量:1155 pcs
工作温度范围:-40℃ ~ 85℃
产品应用领域:游戏机、电脑,玩具、家用电器,办公设备、安监产品等
说明事项:可根据实际使用情况及线径粗细进行使用数量及绕线圈数的增加
- EMI / EMC 对策用夹扣式铁氧体磁芯 362017型 产品详细介绍资料
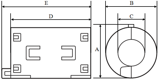
产品平面图:
产品尺寸:(mm)
A B C D E 15.5±1.00
14.0±1.00
7.0±0.80
18.0±1.0
22.0±1.0
电气特性:
AT 25MHZ
38Ω MIN
AT 100MHZ
93Ω MIN
测试仪器
HP 4191A
测试夹具
HP 4286
绕线方式
0.65T.C.W*120mm*0.5TS
测试温度
25℃
测试湿度
65%
参考单重:
6.0g
抽测数据:项目
AT 25MHZ
AT 100MHZ
A B C D E 参考值
38Ω min
93Ω min
15.5±1.00
14.0±1.00
7.0±0.80
18.0±1.0
22.0±1.0
1 47.38
119.46
15.56
14.23
6.98
18.03
22.09
2 44.52
107.31
15.31
14.16
7.02
17.95
22.09
3 40.36
109.62
15.46
14.09
6.95
18.09
22.13
4 42.53
115.27
15.63
14.11
7.05
17.95
22.07
5 43.41
121.06
15.22
14.19
7.03
17.98
22.11
x-bar
43.64 114.54 15.44 14.16 7.01
18.00 22.10 R 7.02 13.75 0.41 0.14 0.10 0.14 0.06
参考的曲线图:
材料特性:
初始磁导率 µi±30%
800
矫顽力HC(A/m)
20
居里温度Tc (℃)
>110
比损耗因子 Tan ð/µi x 10-6
16(0.1MHz)
电阻率ρ(Ω•m)
>105
比温度系数 ɑ ð/γ x10-6
5-10
饱合磁通密度 Bs (MT)
350(1600A/m)
使用范围F MHz
1-1000
剩磁 Br (MT)
200
密度d g/cm3
4.7
构成主要成分:成份
CAS 編號
EC 编号
比率
Fe2O3
1309-37-1
215-168-2
55.5%~73.5%
ZnO
1314-13-2
215-222-5
14%~22%
MgO
1309-48-4
215-171-9
1%~9%
MnCO3
598-62-9
209-942-9
1%~15%
CuO
1317-38-0
215-269-1
1%~8%

