362613
产品概述
品牌:国磁通GCT
品名:铁氧体磁环
产品适用线径:13.0mm
参考单重:61.7g
每箱包装数量:224 pcs
工作温度范围:-40℃ ~ 85℃
产品应用领域:游戏机、电脑,玩具、家用电器,办公设备、安监产品等
说明事项:可根据实际使用情况及线径粗细进行使用数量及绕线圈数的增加
- EMI / EMC 对策用夹扣式铁氧体磁芯 362613型 产品详细介绍资料
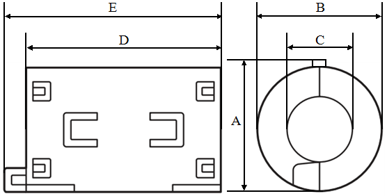
产品平面图:
产品尺寸:(mm)
A B C D E 30.0±1.00
30.0±1.00
13.0±1.0
34.0±1.0
34.0±1.0
电气特性:
AT 25MHZ
94Ω MIN
AT 100MHZ
190Ω MIN
测试仪器
HP 4191A
测试夹具
HP 4286
绕线方式
0.65T.C.W*120mm*0.5TS
测试温度
25℃
测试湿度
65%
参考单重:
61.7g
抽测数据:
项目
AT 25MHZ
AT 100MHZ
A
B C D E 参考值
94Ω MIN
190Ω MIN
30.0±1.00
30.0±1.00
13.0±1.0
34.0±1.0
39.0±1.0
1 104.45
220.15
30.32
30.13
12.97
34.64
38.78
2 107.62
230.46
30.54
29.86
12.98
34.57
38.99
3 109.38
228.89
30.48
30.08
12.97
34.52
38.56
4 110.21
230.13
30.51
30.42
13.01
34.51
38.59
5 103.86
229.18
30.39
30.15
12.97
35.29
38.62
x-bar
107.10 227.76 30.45 30.13 12.98 34.71 38.71 R 6.35 10.31 0.22 0.56 0.04 0.78 0.43
参考的曲线图:
材料特性:
初始磁导率 µi±30%
800
矫顽力HC(A/m)
20
居里温度Tc (℃)
>110
比损耗因子 Tan ð/µi x 10-6
16(0.1MHz)
电阻率ρ(Ω•m)
>105
比温度系数 ɑ ð/γ x10-6
5-10
饱合磁通密度 Bs (MT)
350(1600A/m)
使用范围F MHz
1-1000
剩磁 Br (MT)
200
密度d g/cm3
4.7
构成主要成分:
成份
CAS 編號
EC 编号
比率
Fe2O3
1309-37-1
215-168-2
55.5%~73.5%
ZnO
1314-13-2
215-222-5
14%~22%
MgO
1309-48-4
215-171-9
1%~9%
MnCO3
598-62-9
209-942-9
1%~15%
CuO
1317-38-0
215-269-1
1%~8%

